Проектирование Частных Домов
Кызылорда
ДОМА С БАССЕЙНОМ
ДОМА В СТИЛЕ Ф.Л. РАЙТА
ДОМА С ПАНОРАМНЫМИ ОКНАМИ
ДОМА В СТИЛЕ НЕОКЛАССИКИ
ДОМА ИЗ КЛЕЕНОГО БРУСА
КИРПИЧНЫЕ ДОМА
Перейти к проектам
FOUR ART
Компания FOUR ART является эксклюзивным представителем международного архитектурного бюро. Основная деятельность компании – продажа типовых проектов частных жилых домов, индивидуальное проектирование, а также предоставление дополнительных услуг, которые помогут быстро построить дом, по любому типовому варианту сделают будущий дом максимально комфортным.
РАЗНЫЕ ВАРИАНТЫ
10 ГОТОВЫХ типовых разработок коттеджей представлено на нашем сайте. Вы найдете здесь дома в разных архитектурных стилях. Каждый без исключения вариант сочетает в себе эстетику, эргономичность, экономичность и все необходимые нюансы для того, чтобы ваше ежедневное проживание было комфортным.
ИНДИВИДУАЛЬНОЕ ПРОЕКТИРОВАНИЕ
Наши специалисты создадут вам необходимый проект дома с нуля в случае, если типовые решения не отражают всех ваших пожеланий. Вы планируете построить малоэтажное нестандартное сооружение. Ваша мечта – это дом "с картинки". Подробнее об услуге позвоните нам или оставьте заявку на сайте.
ПРОЕКТЫ ДОМОВ И КОТТЕДЖЕЙ
Задать вопрос дизайнеру
Оставьте заявку и мы Вам перезвоним в течении 10 минут
ГОТОВЫЕ ПРОЕКТЫ
М01 СОВРЕМЕННЫЙ ДВУХЭТАЖНЫЙ ДОМ С БАССЕЙНОМ
  • Общая площадь: 1100 м2
  • Длина: 49,65 м
  • Ширина: 44,22 м
  • Фундамент: монолитный ж/б плитный
  • Стены: ж/б каркас с заполнением кирпича 2.1НФ
  • Перекрытия: монолитный ж/б
  • Кровля: плоск, частично эксплуатируемая
  • Покрытие: каменная плитка
  • Наружная отделка: керамогранит, планкен и декоративные элементы
  • Цоколь: керамогранит
9990
тг.
M02 ПРОЕКТ ДОМА В СТИЛЕ Ф.Л. РАЙТА
  • Общая площадь: 399 м2
  • Длина: 23,8 м
  • Ширина: 17,2 м
  • Фундамент: монолитный плитный
  • Стены: кирпич
  • Перекрытия: монолитный ж/б
  • Кровля: вальмовая
  • Покрытие: битумная черепица
  • Наружная отделка: облицовочный кирпич/ штукатурка/ планкен
  • Цоколь: натуральный камень


9990
тг.
М03 ПРОЕКТ ДВУХЭТАЖНОГО ДОМА В СТИЛЕ РАЙТА
  • Общая площадь: 513 м2
  • Длина: 29 м
  • Ширина: 17 м
  • Фундамент: монолитный ж/б плитный
  • Стены: кирпич 2.1НФ
  • Перекрытия: монолитный ж/б
  • Кровля: скатная
  • Покрытие: фальцевая
  • Наружная отделка: керамогранит, крупноформатная плитка под кирпич
  • Цоколь: керамогранит
9990
тг.
М04 ПРОЕКТ ДВУХЭТАЖНОГО ДОМА С ПАНОРАМНЫМИ ОКНАМИ
  • Общая площадь: 310 м2
  • Длина: 18 м
  • Ширина: 17 м
  • Фундамент: монолитный ж/б плитный
  • Стены: кирпич 2.1НФ
  • Перекрытия: монолитный ж/б
  • Кровля: плоская
  • Покрытие: балластная с гравийной засыпкой
  • Наружная отделка: керамогранит
  • Цоколь: керамогранит
9990
тг.
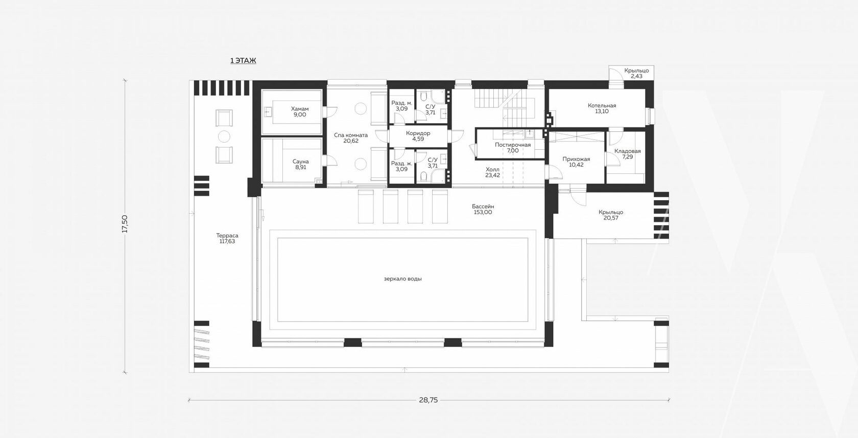
М05 СОВРЕМЕННЫЙ СПА КОМПЛЕКС
  • Общая площадь: 649 м2
  • Длина: 28 м
  • Ширина: 17 м
  • Фундамент: монолитный ж/б плитный
  • Стены: монолитный ж/б каркас с заполнением газобетонными блоками, утепленные минеральной ватой
  • Перекрытия: монолитный ж/б
  • Кровля: плоская
  • Покрытие: ж/б , утепленная пенополистиролом с пригрузочным слоем из гравия, часть эксплуатируемая с самонесущими плитами из керамогранита
  • Наружная отделка: керамогранит и планкен
  • Цоколь: керамогранит
9990
тг.
М06 ПРОЕКТ ДВУХЭТАЖНОГО ДОМА С БАССЕЙНОМ
  • Общая площадь: 420 м2
  • Длина: 26 м
  • Ширина: 21 м
  • Фундамент: монолитный ж/б плитный
  • Стены: монолитный ж/б каркас с заполнением газобетонными блоками, утепленные минеральной ватой
  • Перекрытия: монолитный ж/б
  • Кровля: скатная
  • Покрытие: битумная черепица
  • Наружная отделка: штукатурка, планкен, керамогранит
  • Цоколь: керамогранит
9990
тг.
М07 ПРОЕКТ СОВРЕМЕННОГО ДОМА С ВНУТРЕННИМ ДВОРИКОМ
  • Общая площадь: 420 м2
  • Длина: 40,5 м
  • Ширина: 22,6 м
  • Фундамент: монолитный плитный
  • Стены: ж/б каркас с заполнением кирпича
  • Перекрытия: монолитный ж/б
  • Кровля: плоская по ж/б плите, частично эксплуатируемая
  • Покрытие: балластная с гравийной засыпкой
  • Наружная отделка: планкен, керамогранит
  • Цоколь: керамогранит
9990
тг.
V08 ПРОЕКТ ДОМА В СТИЛЕ НЕОКЛАССИКИ
  • Общая площадь: 860 м2
  • Длина: 48 м
  • Ширина: 22 м
  • фундамент: монолитный плитный
  • стены: крупноформатный кирпич
  • перекрытия: монолитные
  • кровля: скатная
  • покрытие: фальцевая
  • Наружная отделка: керамогранит
  • Цоколь: гранит
9990
тг.
М09 ПРОЕКТ ДОМА ИЗ КЛЕЕНОГО БРУСА СО ВТОРЫМ СВЕТОМ
  • Общая площадь: 299 м2
  • Длина: 22 м
  • Ширина: 13 м
  • фундамент: монолитный плитный
  • наружные стены: клееный профилированный брус
  • перекрытия: по деревянным балкам
  • кровля: мансардная
  • покрытие: цементно-песчаная черепица
  • Наружная отделка: тонировка
  • Цоколь: натуральный камень
9990
тг.
М10 КИРПИЧНЫЙ ДОМ В СТИЛЕ РАЙТА
  • Общая площадь: 321 м2
  • Длина: 22 м
  • Ширина: 19 м
  • фундамент: монолитный плитный
  • стены: крупноформатный кирпич
  • кровля: вальмовая
  • покрытие: мягкая битумная черепица
  • перекрытия: монолитные
  • Наружная отделка: штукатурка, клинкерная плитка, планкен
  • Цоколь: керамогранит
9990
тг.
На главную
Хотите получить подробную консультацию?
Оставьте заявку, в ближайшее время с Вами свяжется наш менеджер и проконсультирует по всем интересующим вопросам.
Эскиз, который дает возможность визуально представить будущее строение
01.
Архитектурное решение (пояснительная записка, генеральный план, планы этажей, разрезы, фасады).
02.
02.
Конструкции строительные КС (фундаменты, стены, перекрытия, кровля).
03.
Внутренние сети (водопровод и канализация, отопление, вентиляция, кондиционирование, электрические и слаботочные сети).
04.
Наружные сети
05.
В СОСТАВ ИНДИВИДУАЛЬНОГО ПРОЕКТА ВХОДИТ:
Наши контакты
Казахстан, Кызылординская область, город Кызылорда, Проспект Абай Кунанбаев, дом 39, кв. 26, почтовый индекс 120000
Закажите обратный звонок
Телефон и WhatsApp: